S邸
スケルトンリフォーム
大胆な間取り変更
スケルトン状態の空間
スケルトン状態の空間
築15年の分譲マンションの一室をスケルトンリフォーム。先ずはスケルトン状態になった空間の共有部分=パイプスペースをしっかりと採寸し、それらを触らずに空間を纏めます。
元々は玄関両側に個室が二つと、あまり広くないLDKと和室、窓のある浴室と洗面室という配置でした。
それらを一掃し大胆な間取り変更を提案しましたが、S様からは一発でOKを戴きました。
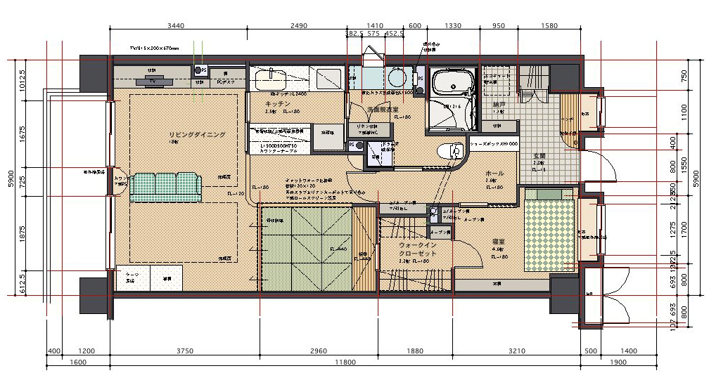
平面図
玄関
窓を取り込んだ玄関は広く明るく、廊下以降の室内空間とは、3枚引きの建具でしっかリ分離されています。これは玄関を開けた際の猫の脱走を防ぐ為と、今後の猫保護活動において玄関を隔離スペースとして利用する配慮です。
外出時の身支度を整える空間として、また通販利用の多いライフスタイルに合わせて、玄関には収納スペースや納戸を設置するのも大変機能的だと考えます。
タイル
廊下とリビング、洗面室の腰にはタイルを張っています。
また寝室、廊下、洗面室、キッチンの床もタイルです。
猫の爪による損傷を防ぎますし、猫特有の吐き戻しで汚れても掃除がし易い素材です。
なによりも大変高級感のある室内空間になります。
廊下
廊下の照明は間接照明で演出しています。
廊下の片側の壁上部に仕込んだ、細長い光の帯が、廊下をより広くドラマティックに演出します。
パイプスペースの周りに出来た細かな空間は、浅い奥行きの収納空間として利用。
日用品の収納の最適です。
洗面室
洗面室は独り暮しならではの配置です。
緩やかに区切られた空間にトイレも配置し、また猫達のトイレ置場もしっかりと確保した上で、リネン庫、洗濯機置場、ガラスで造られた意匠性と機能性を兼ね備えたオリジナルの洗面カウンターを設けています。
またここの空間は、他の空間とは違って照明の色を白い色に揃えていますので、白いタイルと相まってとても爽やかな空間に仕上がっています。
浴室
浴室はユニットバスですが、ミストサウナ機能のある浴室換気暖房機を組み込んで、より快適なバスルームになっています。
キッチン
洗面室からは直接キッチンに。
キッチンからは勿論リビングルームへと回遊する動線を確保しています。
コンパクトなキッチンですが、両面から使える食器棚と、家電カウンター兼ダイニングカウンターが特徴で、大変効率よく収納を纏めてあります。
Sさんの以前の愛猫さんは、キッチンに入ってはお鍋を落とす事で有名だった為、今回は料理中、猫達が入って来ないようにしたいとの事でした。
解決策として提案したのが、両面食器棚と縦格子の建具でした
食器棚部分のガラスには、飛散防止を兼ねてガラスフィルムを貼っていますが、光が当たると大変美しい輝きを見せてくれます。
リビング
リビングの床はイタリア製のコルクタイルで、その下には遠赤外線効果のある床暖房を採用しています。
壁面には小物の収納を兼ねた猫の為の階段。
キャットウォークへと続き、ドアの上に飛び、段違いの猫棚を降りて回遊出来るようになっています。
大型の液晶テレビの上にも猫が飛び乗る危険があるのですが、ここにも猫棚を設置しておきます。
和室
リビングは和室空間と一体ですが、段差を設けて緩く仕切っています。
来客時には来客用寝室として利用するけれど、日常ではリビングの一部として使う空間です。
和室空間の上部はキャットウォークを取付けてありますが、これは障子の替わりに吊り下げたロールスクリーンを取付ける役目も果たしています。
天井から直接吊り下げるのではなく、上部を開ける事と、少し透けた布のロールスクリーンで、付かず離れずの絶妙の距離感を演出します。
段差のある畳の下には収納空間が広がります。
ウォークインクロゼット
和室の奥にはウォークインクロゼットがあり、その向こうは寝室です。
建具は細かな縦桟の入った、ヒバ材の無垢建具。透けて見えるので、向こうの気配が微かに伝わりますし、夏場にはベランダから共用廊下への通風を助け、風の通り抜ける快適な空間になります。
寝室
北側に位置する寝室は、夏場猫達が涼む場所として考えられています。
クーラーが無くても風が良く通り抜け、タイルのひんやりとした感触が猫達を熱射病から守るのです。
































